PENTHOUSE À NASSAU

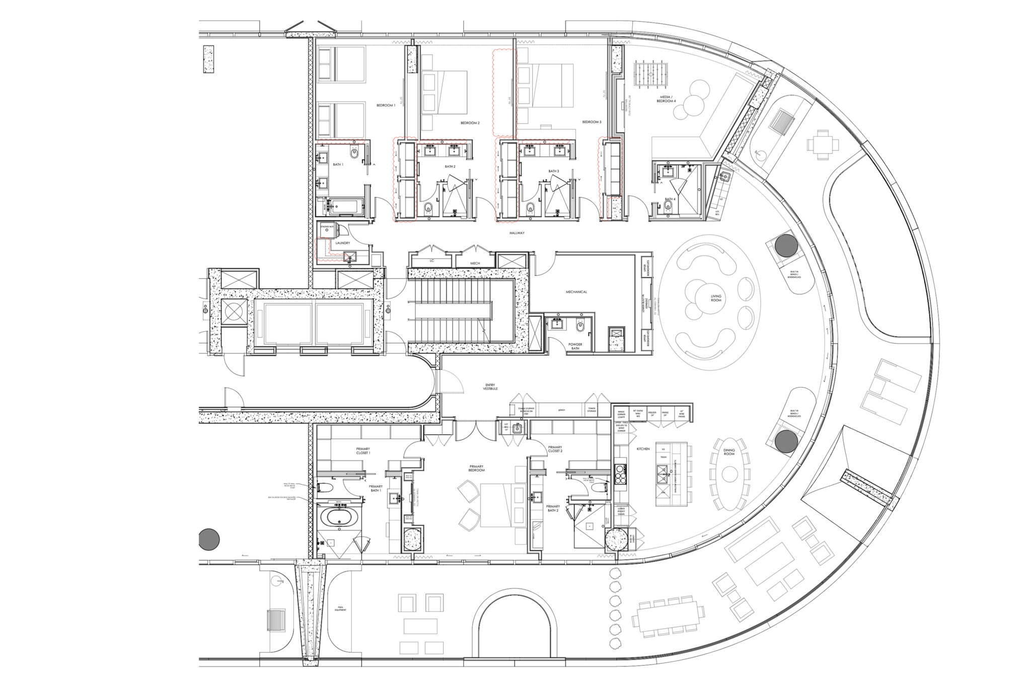
Ce somptueux penthouse situé à Nassau, aux Bahamas, incarne l’élégance contemporaine et la sérénité d’un cadre en bord de mer. Chaque espace a été pensé pour refléter une harmonie parfaite entre design raffiné, matériaux naturels et une palette de couleurs apaisantes, en parfaite adéquation avec l’environnement tropical de l’ile.

L’agencement fluide du penthouse met en valeur un vaste espace de vie ouvert, baigné de lumière naturelle grâce aux grandes baies vitrées offrant une vue panoramique sur l’océan. Le mobilier aux lignes épurées et les matières nobles – marbre, bois clair, tissus naturels – créent une atmosphère chaleureuse et sophistiquée. Un espace lounge avec des assises confortables invite à la détente, tandis que la salle à manger met en scène une table élégante idéale pour recevoir.

Cette page sera régulièrement mise à jour tout au long du développement et ce projet devrait être finalisée au printemps 2026.