GENEVA COUNTRYSIDE RESIDENCE

Set in the rural landscape of Geneva’s left bank, this family residence is undergoing restructuring and renovation. Carefully considered architectural details enhance its volumes and define its character, balancing historical features with contemporary design.

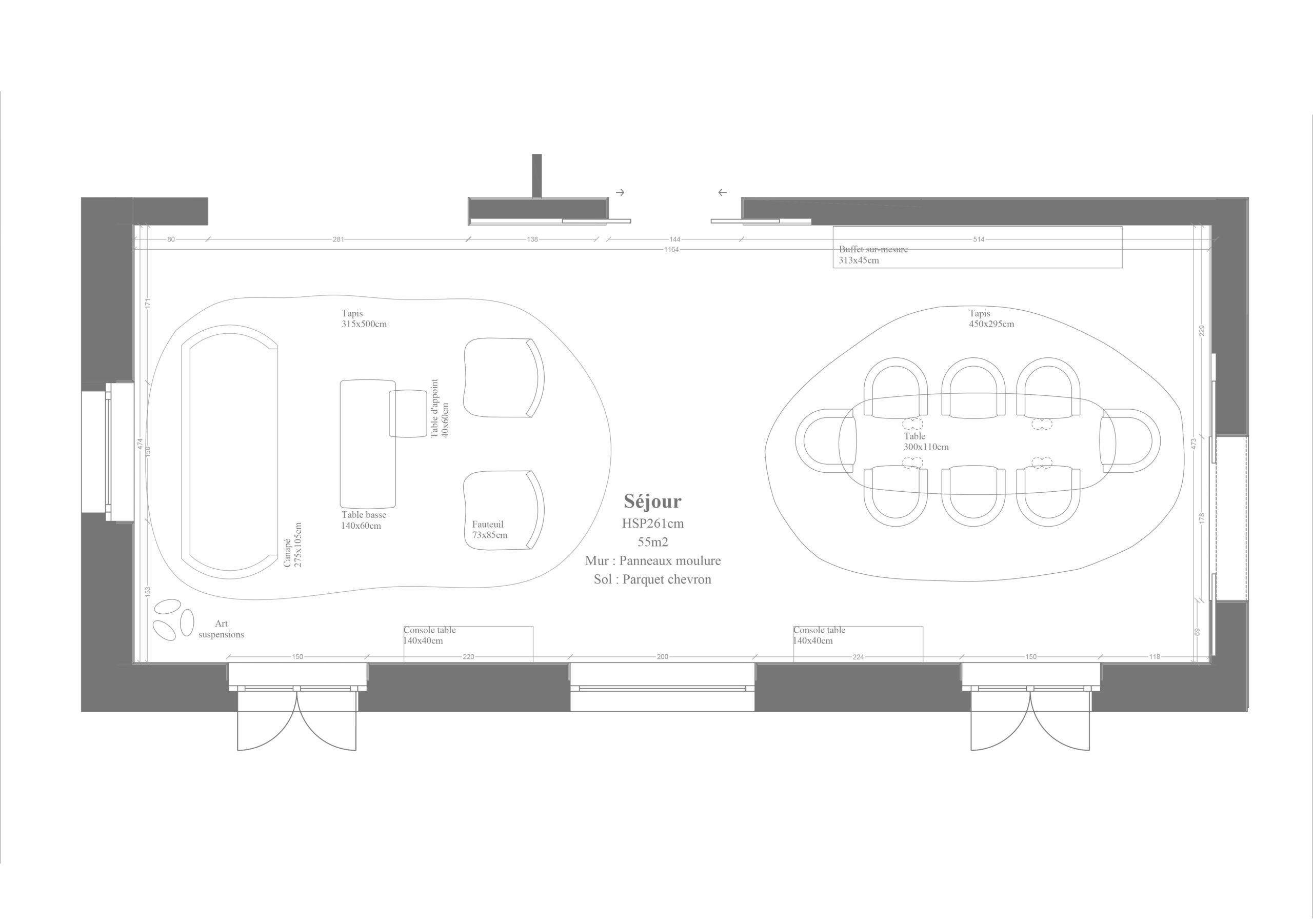
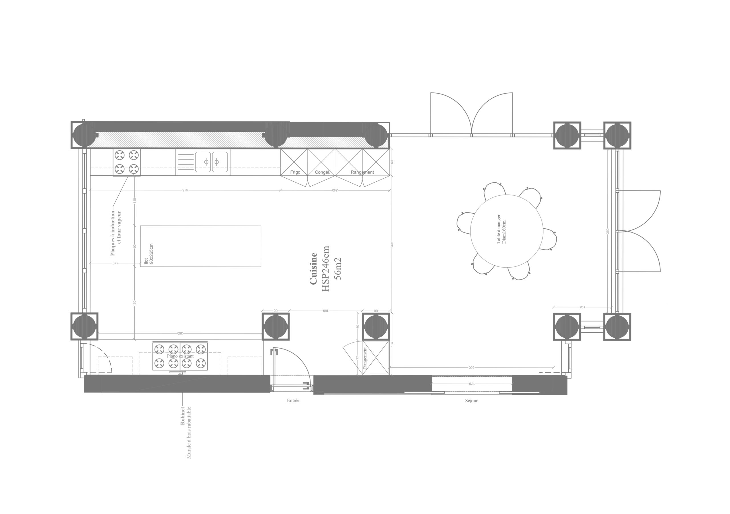
The reconfigured walls, refined ceilings, and detailed cornices shape the home’s distinct identity. Central to the project is the attic level, converted into private bedrooms beneath the sloped rooflines.

The key element to consider was integrating substantial custom storage without compromising the sense of space. Each fitted element has been designed to combine functionality with aesthetic appeal while maintaining an open, uncluttered feel.

Hand-painted panoramic wallpapers cover the walls, adding visual depth and decorative interest that complements the architectural framework.

The project is scheduled for completion in 2027.

Discover more projects